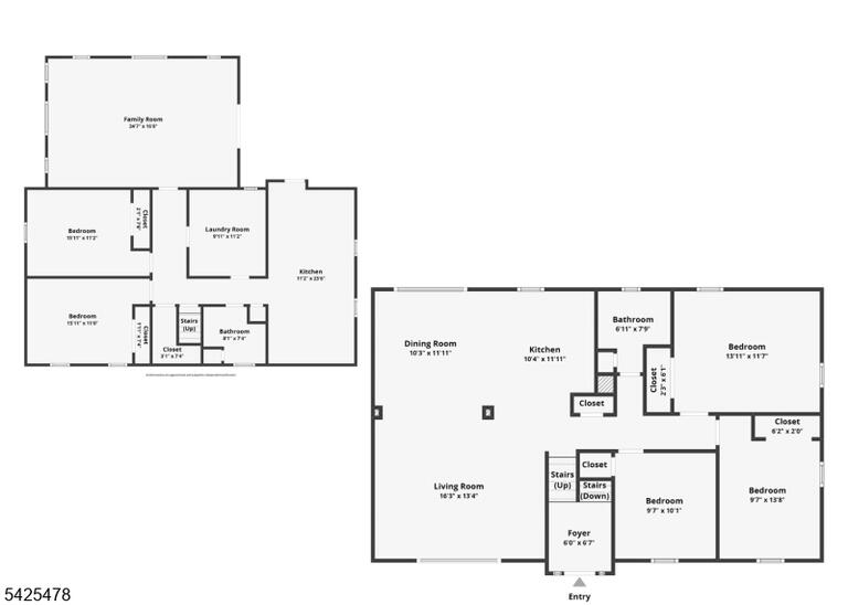
Step into this spacious corner lot bi-level home offering a total of 5 bedrooms and 2 full baths, 2 full kitchens. You can easily set up an in-law suite or a guest floor. This whole property was thoughtfully designed for comfortable living and effortless entertaining. The upper level welcomes you with a bright entry foyer featuring a half-moon window, leading into an open-concept living/dining combo. The living area is accented by a sleek wall-mounted electric LED fireplace, while the adjoining dining space flows seamlessly into the updated maple kitchen, complete with eggshell Corian countertops, a mini subway tile backsplash, and a convenient spacious breakfast bar. Three generously sized bedrooms and a full bath complete this level. The lower level provides additional versatility with a second full kitchen and cozy breakfast nook, perfect for extended living or hosting. This space opens directly to a covered patio and swimming pool, and hot tub, creating a great setting for outdoor enjoyment. Two additional bedrooms, including a spacious primary bedroom with sliding glass doors to the patio, a full bath, and an oversized laundry room round out this level. With ample space and a flexible layout, this home offers a perfect blend of comfort and functionality.
334 Pine St, Pompton Lakes Boro NJ 07442-1639
Property City
Pompton Lakes Boro
Property Price
$690,000
Rooms
11
Bedrooms
5
Bathrooms
2.00
Year Built
1965
Tax Annual Amount
$14747
TaxYear (*text)
2025
BathroomsFull
2
Roof (*text)
Asphalt Shingle
Lot Size Area
0.24
PetsAllowed (*text)
Call
MLS Status
Active
MLS #
4021839
Yearly Tax Rate
4.131
Year Built (*numeric)
1965
Basement
No
Roofing (*text)
Asphalt Shingle
Basement (*text)
No
Cooling (*text)
Window A/C(s)
FireplacesTotal (*text)
0
GarageSpaces
0
Heating
1 Unit, Baseboard - Hotwater
Lot Size Dimensions
0.24 AC
Data import from
GSMLS