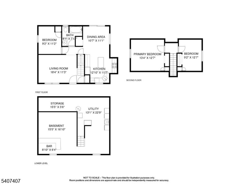
This 3-bedroom home Boasts a smart, functional layout with bright, inviting living spaces that make everyday living comfortable and enjoyable. The kitchen stands out with high cabinetry offering plenty of storage and a clean, timeless look. A partially finished basement adds flexible space, perfect for a workout area, media room, or additional living space.The backyard is designed for both relaxation and entertaining, featuring room to gather and a hot tub for unwinding at the end of the day. A whole-house generator and a whole-house humidifier attached to the HVAC system add convenience, comfort, and peace of mind throughout the year. With its practical layout and seamless indoor-outdoor living, this home combines comfort and functionality. Conveniently located near schools, parks, shopping, and major highways, it makes daily life and commuting easy and stress-free.
37 MARY STREET, Lodi Boro NJ 07644-2143
Property City
Lodi Boro
Property Price
$549,900
Rooms
5
Bedrooms
3
Bathrooms
1.00
Year Built
1940
Tax Annual Amount
$9167
TaxYear (*text)
2024
BathroomsFull
1
Roof (*text)
Asphalt Shingle
Floors No
Carpeting, Tile, Wood
Lot Size Area
0.11
MLS Status
Active
MLS #
4006717
Yearly Tax Rate
3.352
Year Built (*numeric)
1940
Basement
Yes
Roofing (*text)
Asphalt Shingle
Basement (*text)
Yes
Cooling (*text)
Central Air
FireplacesTotal (*text)
0
GarageSpaces
0
Heating
1 Unit, Forced Hot Air
Lot Size Dimensions
50X100
Data import from
GSMLS