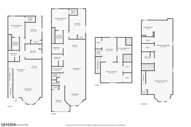
Welcome to this truly exceptional, custom-built two-family residence, with both units offering approximately 2,000 sq ft duplex( 2 floor) layouts. Each home features a seamless open floor plan filled with abundant natural light, thoughtfully designed for modern living and flexibility; Oversized window to show case the NYC Skyline.The property offers a total of 8 generously sized bedrooms and 6 full designer bathrooms, blending scale, comfort, and functionality ideal for owner-occupants, flex living, or investors. The garden level provides private front and rear walk-out access, and each unit including the basement has its own dedicated entrance, enhancing privacy and versatility.Situated on a fantastic street with NYC views, this home is just minutes from the Light Rail and moments from Berry Lane Park.Every detail has been carefully curated, from the intelligent floor plan to the oversized windows that flood the home with sunlight. Located in one of the area's most desirable and rapidly growing neighborhoods, this is a rare opportunity to own a custom, turn-key two-family property offering exceptional scale, versatility, and location truly unmatched in today's market.
221 Clerk St, Jersey City NJ 07305-4426
Property City
Jersey City
Property Price
$1,300,000
Bedrooms
8
Year Built
2026
Tax Annual Amount
$8478
TaxYear (*text)
2024
Roof (*text)
Asphalt Shingle
Lot Size Area
0.06
MLS Status
Active
MLS #
4009746
Yearly Tax Rate
2.233
Year Built (*numeric)
2026
Basement
Yes
Roofing (*text)
Asphalt Shingle
Days On Market
0
Basement (*text)
Yes
Cooling (*text)
2 Units, Central Air, Multi-Zone Cooling
Heating
2 Units, Forced Hot Air, Multi-Zone
Lot Size Dimensions
25X100
Data import from
GSMLS